Back to search results
3 Bedroom House
Christ Church Close, Stamford
Guide Price
£375,000 Sold STC
Property Type
House - Mid Terrace
Bedroom
3
Bathroom
2

Tenure

Freehold

Property Description
Immaculately Presented Three/Four Bedroom Town House – Stylish Upgrades, South-Facing Garden & Garden Office

This immaculately presented three/four-bedroom modern town house has been significantly improved by the current owners, offering high-quality finishes, versatile accommodation, and exceptional attention to detail throughout. Ideally located close to the town centre and local amenities, this home provides a superb blend of comfort, practicality, and contemporary style.

The first floor features a stylish breakfast kitchen fitted with Neff appliances, solid work surfaces, and a Juliet balcony that brings in an abundance of natural light. A spacious sitting room, complete with gas fire, solid wood flooring, and a second Juliet balcony, offers a warm and elegant living space.

The top floor includes a main bedroom with en-suite, two further bedrooms, and a modern shower room, providing well-balanced accommodation for families or guests.

The ground floor offers impressive flexibility with a utility room, study/bedroom four, hobby room, and an air-conditioned conservatory, ideal for year-round use. Throughout the property, window shutters add style and privacy, while solar panels and gas-fired central heating enhance energy efficiency.

The south-facing rear garden is designed for low maintenance and features an air-conditioned garden office with power and light — perfect for home working or creative pursuits. To the front, a block-paved driveway leads to a useful storage garage.

Beautifully finished and thoughtfully arranged, this outstanding town house offers versatile living space in a highly convenient location — a home that must be viewed to be fully appreciated.
Key Features
  • Immaculate modern town house
  • Easy access to the town centre
  • Stylish breakfast kitchen
  • Spacious sitting room with juliet balcony and window shutters
  • Three bedrooms, optional fourth with a study on the ground floor
  • Air conditioned conservatory & garden office
  • Gas fired central heating & solar panels
  • Block paved driveway
  • Council Tax Band - D
  • EPC - B
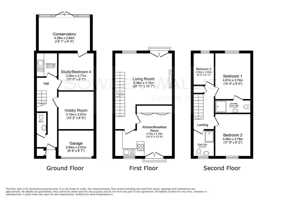
Floor Plan
Gg ECNKF Hp E Guuuf Us9gx Hw
Dimensions

Cloakroom -

1.75m 0.86m (5'9 2'10)

Study/Bedroom Four -

3.05m x 2.77m (10' x 9'1)

Conservatory -

4.29m x 2.84m (14'1 x 9'4)

Utility Room -

1.91m x 1.68m (6'3 x 5'6)

Hobby Room -

3.10m x 2.57m (10'2 x 8'5)

Sitting Room -

4.37m x 4.75m max (14'4 x 15'7 max)

Breakfast Kitchen -

4.70m max, 2.77m min x 4.19m max, 2.24m min (15'5

Main Bedroom -

4.06m x 2.74m (13'4 x 9')

En-suite -

2.51m x 1.88m (8'3 x 6'2)

Bedroom Two -

3.58m x 2.79m (11'9 x 9'2)

Bedroom Three -

2.59m x 1.85m (8'6 x 6'1)

Shower Room -

2.24m x 1.85m (7'4 x 6'1)

Garden Office -

2.44m x 2.44m (8' x 8')

Storage Garage -

2.64m x 2.01m (8'8 x 6'7)

Location