Back to search results
2 Bedroom House
Haddon Road, Stamford
Guide Price
£230,000
Property Type
House - Mid Terrace
Bedroom
2
Bathroom
1

Tenure

Freehold

Property Description
Offered for sale with NO CHAIN, this well-presented two-bedroom mid-terraced home provides comfortable and well-proportioned accommodation, enjoying a pleasant outlook over a green to the front.

The property features a welcoming entrance porch leading into a cosy lounge, complete with a wood-burning stove creating a warm focal point. To the rear is a breakfast kitchen, offering good storage and workspace, and providing ample room for everyday dining.

Upstairs, the accommodation includes a generous main bedroom, a second well-sized bedroom, and a modern shower room, all presented in good order.

Externally, the property benefits from a well-maintained rear garden, ideal for relaxing or entertaining. In addition, there is off-street parking and a single garage, providing practical parking and storage solutions.

Enjoying an attractive position overlooking a green and offered with the added advantage of NO CHAIN, this appealing home represents an excellent opportunity for first-time buyers, downsizers, or investors alike.
Key Features
  • Well presented two bedroom home
  • Generous & well proportioned rooms
  • Tucked away location
  • Breakfast kitchen
  • Sitting room with wood burner
  • Gas fired central heating
  • Good sized Main bedroom
  • Off street parking & single garage
  • Council Tax Band - B, EPC - C
  • NO CHAIN
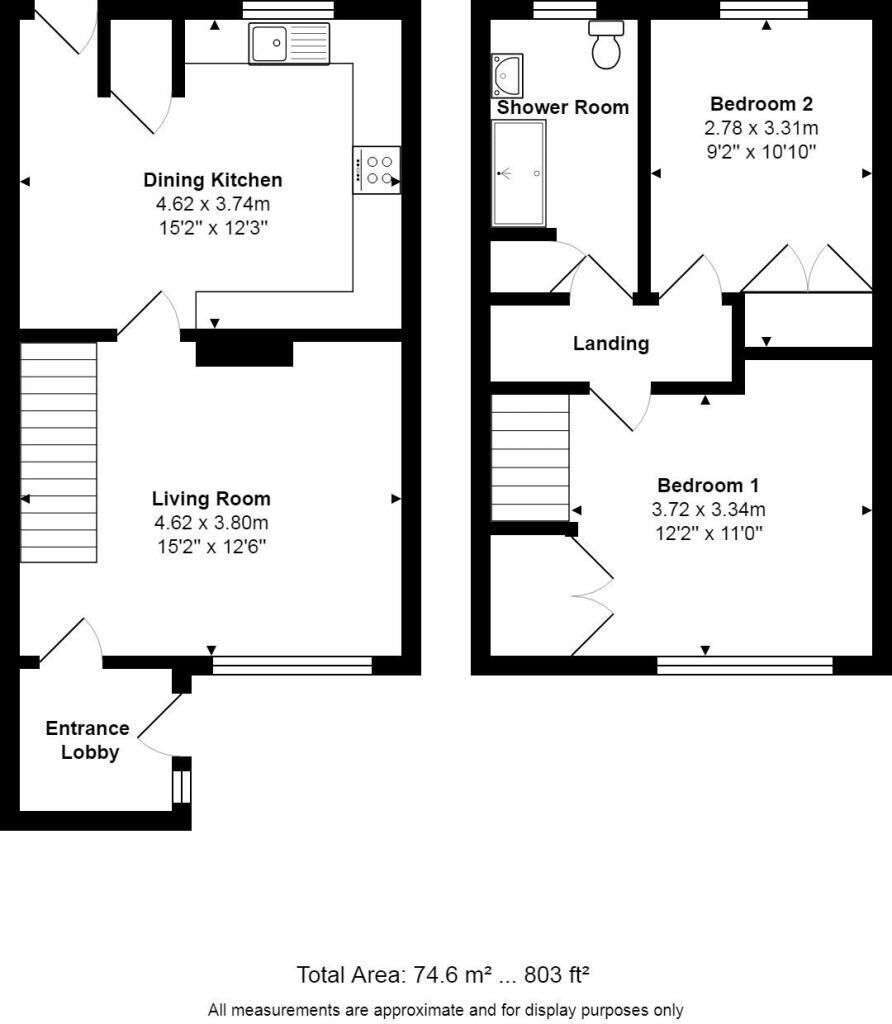
Floor Plan
X J Sg Ux J Zokq TJ6 Hra Wzm VQ
Dimensions

Entrance Porch -

1.73m x 1.47m (5'8 x 4'10)

Sitting Room -

4.57m x 3.76m (15' x 12'4)

Breakfast Kitchen -

4.57m x 3.66m (15' x 12')

Main Bedroom -

3.66m x 3.71m max, 3.33m min (12' x 12'2 max, 10'1

Bedroom Two -

3.78m x 2.72m (12'5 x 8'11)

Shower Room -

3.23m x 1.73m (10'7 x 5'8)

Location